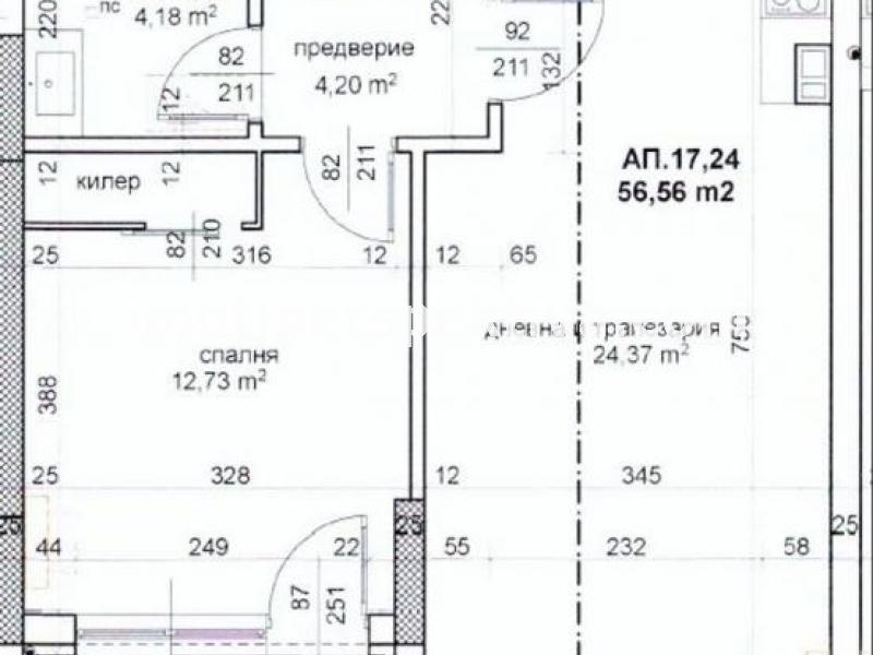
Продава: 2-стаен, Пощата, Тракия, 66кв.м., 3/8ет., 108000€
Предлагаме на вниманието ви страхотен апартамент в НОВОПОСТРОЕНА ЛУКСОЗНА СГРАДА С АКТ 16!!! Разположена е на много спокойно и зелено място в един от най-привлекателните квартали на Пловдив ! Жилището се състои от просторна дневна с кухненски бокс, спалня, вх.антре , баня с тоалетна , тераса. Имотът е разположен на СРЕДЕН ЕТАЖ и е с функционално и удобно разпределение . Сградата е построена съгласно всички европейски стандарти при технологията и качеството на строителство : стилна фасада, луксозни общи части , Постигнати високи нива на енергийна ефективност!
Сградата е с НИСЪК ПРОЦЕНТ ОБЩИ ЧАСТИ, хидро и топлоизолация, немска PVC дограма, блиндирани входни врати, иновативен електрически асансьор, луксозно завършване на общите части! Възможност за покупка на паркомясто на отделна цена..
Запитване и огледи
Полетата, отбелязани със * са задължителни.
Тази форма изпраща email до perspektivaimot@gmail.com с Вашите: IP адрес/анти спам защита/, име, телефон и имейл. Данните се използват, за да се свържем с Вас, относно Вашето запитване.
За повече информация и за начина на управление на Вашите данни посетете: Политика за поверителност и защита.
