Продава: 2-стаен, х-л SPS, Тракия, 89кв.м., 4/10ет., 114999€
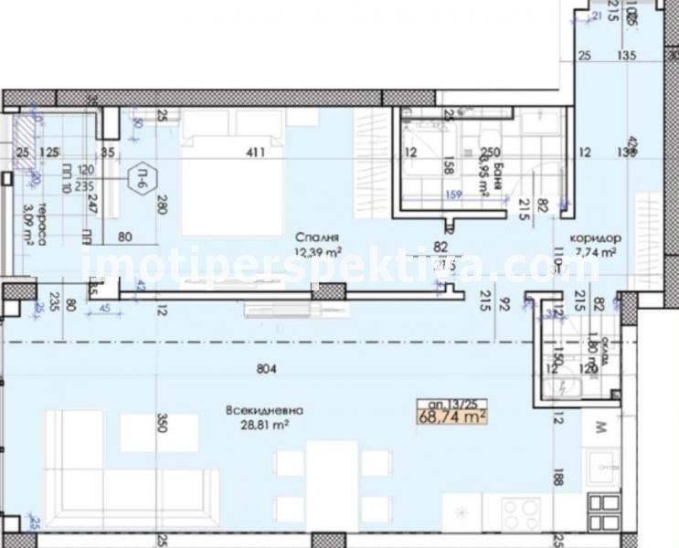
Предлагаме Ви ДВУСТАЕН апартамент на СРЕДЕН ЕТАЖ в НОВА СГРАДА пред АКТ 16 на комуникативно място! Състои се от СВЕТЪЛ и ПРОСТОРЕН хол с кухненски бокс, УЮТНА спалня, тераса , баня с тоалетна, антре, мокро помещение и прилежащо избено помещемие. Имотът който ви предлагаме да закупите е на шпакловка и замазка което дава страхотната възможност на новите собственици да го обзаведат по собствен вкус и стил. В близост са разположени детски градини,училища,хранителни магазини,удобен градски транспорт до всяка една точка на града и др. Възможност за покупка и на ПАРКОМЯСТО в сградата ! АГЕНЦИЯТА СЪДЕЙСТВА С ВСИЧКО НЕОБХОДИМО ДО ПРИКЛЮЧВАНЕ НА СДЕЛКАТА!!!
Запитване и огледи
Полетата, отбелязани със * са задължителни.
Тази форма изпраща email до perspektivaimot@gmail.com с Вашите: IP адрес/анти спам защита/, име, телефон и имейл. Данните се използват, за да се свържем с Вас, относно Вашето запитване.
За повече информация и за начина на управление на Вашите данни посетете: Политика за поверителност и защита.
