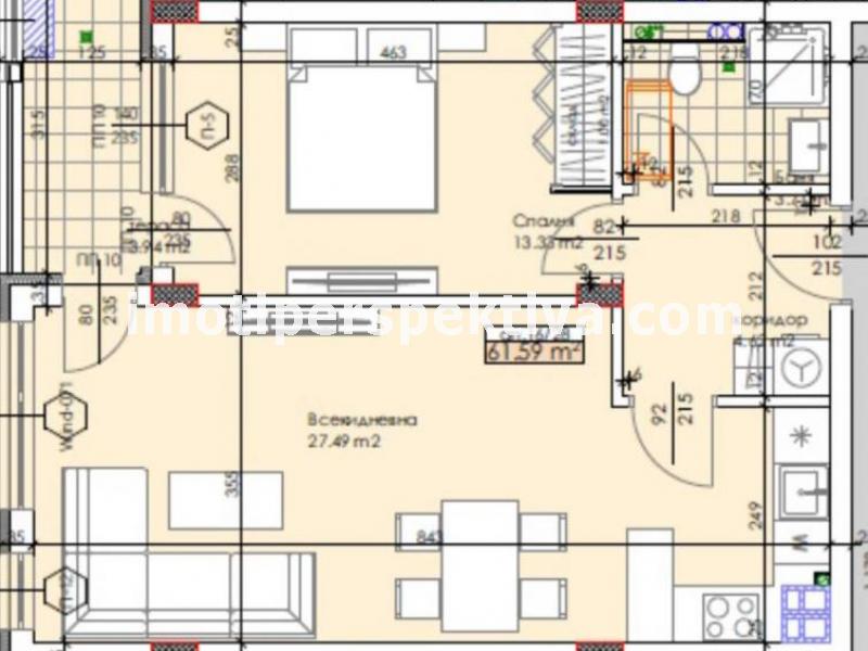
Продава: 2-стаен, Пощата, Тракия, 72кв.м., 6/8ет., 126990€
ПРЕД АКТ 16!!! Предлагаме Ви ДВУСТАЕН апартамент на СРЕДЕН ЕТАЖ, разположен в новострояща се ЛУКСОЗНА СГРАДА !!! Жилището се състои от просторен и светъл хол с кухненски бокс, спалня, тераса, баня с тоалетна, входно антре и избено помещение. Сградата се строи от утвърден строител с множество готови обекти , като ще бъде завършена съгласно всички европейски стандарти при технологията и качеството на строителство: стилна фасада, луксозни общи части. Постигнати високи нива на енергийна ефективност!!! Сградата е с НИСЪК ПРОЦЕНТ ОБЩИ ЧАСТИ, хидро и топлоизолации, блиндирани входни врати, иновативен електрически асансьор, луксозно завършване на общите части ! Към имота може да бъде закупено ПАРКОМЯСТО на отделна цена!!! АГЕНЦИЯТА СЪДЕЙСТВА С ВСИЧКО НЕОБХОДИМО ДО ПРИКЛЮЧВАНЕ НА СДЕЛКАТА!!!
Запитване и огледи
Полетата, отбелязани със * са задължителни.
Тази форма изпраща email до perspektivaimot@gmail.com с Вашите: IP адрес/анти спам защита/, име, телефон и имейл. Данните се използват, за да се свържем с Вас, относно Вашето запитване.
За повече информация и за начина на управление на Вашите данни посетете: Политика за поверителност и защита.
