Продава: Многостаен, бул.Южен, Кючук Париж, 136кв.м., 3/9ет., 128590€
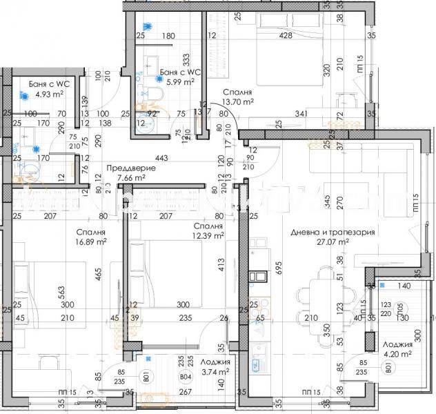
ТОП ОФЕРТА ЗАПОВЯДАЙТЕ ЗАЕДНО ДА ИЗБЕРЕМ ИДЕАЛНИЯ КАТО РАЗПРЕДЕЛЕНИЕ , ИЗЛОЖЕНИЕ И ЕТАЖ ИМОТ ЗА ВАС !!! Идеален за инвестиция ! Предлагаме на вниманието ви страхотен апартамент в новострояща се луксозна сграда на много спокойно и зелено място в един от най-привлекателните квартали на Пловдив ! Жилището се състои от просторна дневна с кухненски бокс, три спални, вх.антре , ДВЕ бани с тоалетни ,ДВЕ тераси. Имотът е разположен на СРЕДЕН ЕТАЖ и е с функционално и удобно разпределение . Сградата се строи от утвърден строител с множество готови обекти , като ще бъде завършена съгласно всички европейски стандарти при технологията и качеството на строителство : стилна фасада, луксозни общи части , Постигнати високи нива на енергийна ефективност!
Сградата е с НИСЪК ПРОЦЕНТ ОБЩИ ЧАСТИ, хидро и топлоизолации, немска PVC дограма, блиндирани входни врати, иновативен електрически асансьор, луксозно завършване на общите части ! Разсрочено плащане в рамките на строителството !
Запитване и огледи
Полетата, отбелязани със * са задължителни.
Тази форма изпраща email до perspektivaimot@gmail.com с Вашите: IP адрес/анти спам защита/, име, телефон и имейл. Данните се използват, за да се свържем с Вас, относно Вашето запитване.
За повече информация и за начина на управление на Вашите данни посетете: Политика за поверителност и защита.
