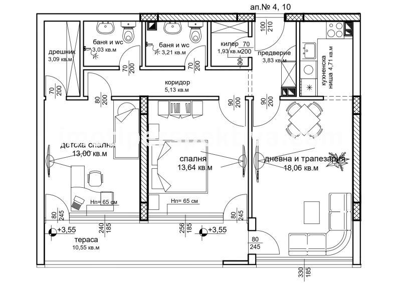
Продава: 3-стаен, Съдийски, Широк център, 103кв.м., 1/9ет., 145400€
Тристаен, слънчев, югозападен апартамент в сграда с Разрешение за ползване от 2025 г.,
Жилището се състои от две самостоятелни спални, едната с гардеробно, дневна с кухненски бокс, тераса към всички стаи, баня с тоалетна, втора баня с тоалетна, складово помещение.
Сградата разполага с наземен и подземен паркинг. Акт 16.
Запитване и огледи
Полетата, отбелязани със * са задължителни.
Тази форма изпраща email до perspektivaimot@gmail.com с Вашите: IP адрес/анти спам защита/, име, телефон и имейл. Данните се използват, за да се свържем с Вас, относно Вашето запитване.
За повече информация и за начина на управление на Вашите данни посетете: Политика за поверителност и защита.
