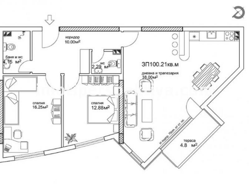
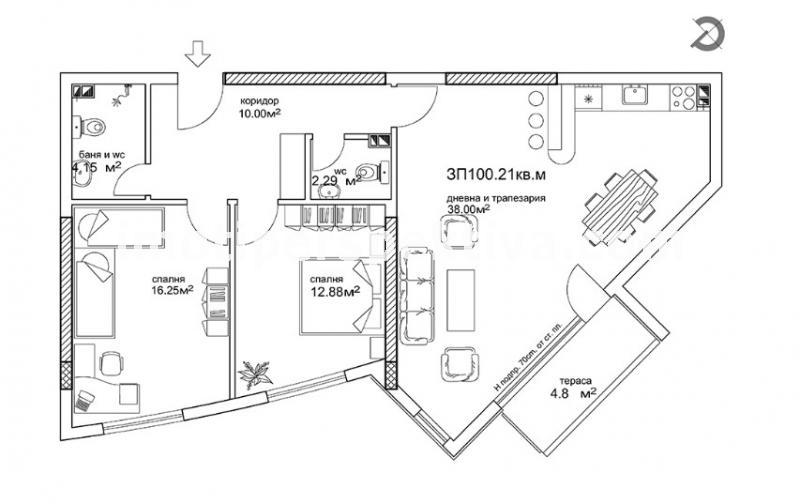
Продава: 3-стаен, Съдийски, Широк център, 124кв.м., 5/14ет., 161810€
С АКТ 16 ! 38 кв.м. хол ! Предлагаме Ви ТРИСТАЕН панорамен апартамент, с РЗП - 124 кв.м. в НОВОПОСТРОЕНА жилищенна сграда с акт 16 . Отлична локация в близост до Центъра, училища, детски ясли и градина, хипермаркети.
- Разпределението е следното: ПРОСТОРНА, СВЕТЛА дневна с кухненски бокс, ДВЕ самостоятелни спални, голяма тераса с излаз от всички стаи, 2 санитарни помещения и килер. Сградата е с подземен и наземен паркинг.
Запитване и огледи
Полетата, отбелязани със * са задължителни.
Тази форма изпраща email до perspektivaimot@gmail.com с Вашите: IP адрес/анти спам защита/, име, телефон и имейл. Данните се използват, за да се свържем с Вас, относно Вашето запитване.
За повече информация и за начина на управление на Вашите данни посетете: Политика за поверителност и защита.
