Продава: 3-стаен, Пощата, Тракия, 140кв.м., 5/13ет., 198000€
Предлагаме за продажба ПРОСТОРЕН АПАРТАМЕНТ НА СРЕДЕН ЕТАЖ.
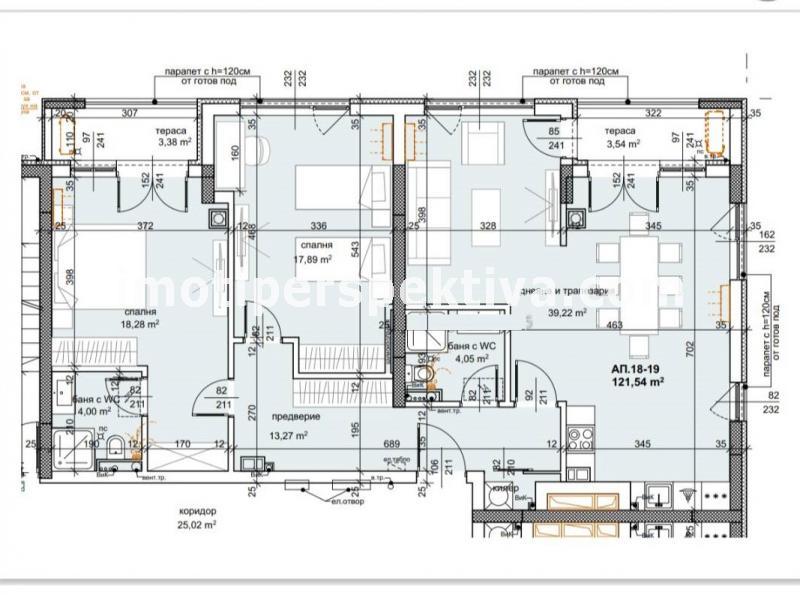
РАЗПРЕДЕЛЕНИЕ: ОГРОМНА дневна с трапезария и кухненски тракт / 39.22 м2 /, две ОБШИРНИ СПАЛНИ / 18 м2 /, две бани с тоалетни, коридор / 13.27 м2/, две чудесни тераси.
ИЗЛОЖЕНИЕ: ЮГОИЗТОК
РЕАЛНА ПЛОЩ: 121.54 м2
Срок на завършване , АКТ 16: 2028 година
ИНФОРМАЦИЯ ЗА ИМОТА: Продава се по БДС на шпакловка и замазка, води на тапа, висок клас дограма, изцяло окабелен, заготовка за климатици,
ПАРКОМЯСТО: С ВЪЗМОЖНОСТ ЗА ПОКУПКА НА ПОДЗЕМНО ПАРКОМЯСТО.
РАЙОН: В близост до Кауфланд, ритейл парк.
Запитване и огледи
Полетата, отбелязани със * са задължителни.
Тази форма изпраща email до perspektivaimot@gmail.com с Вашите: IP адрес/анти спам защита/, име, телефон и имейл. Данните се използват, за да се свържем с Вас, относно Вашето запитване.
За повече информация и за начина на управление на Вашите данни посетете: Политика за поверителност и защита.
