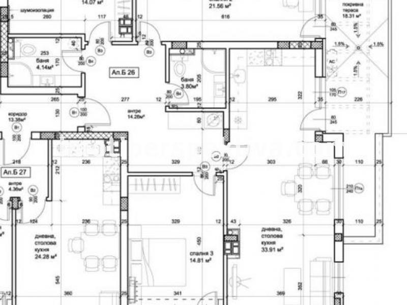
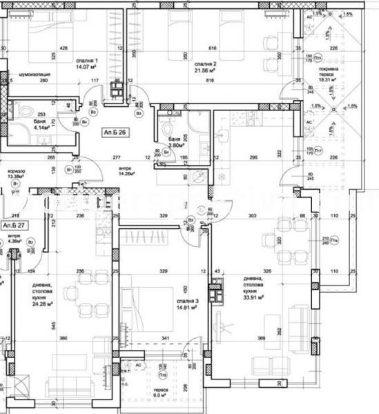
Продава: Многостаен, Кючук Париж, 187кв.м., 7/7ет., 261870€
Предлагаме Ви многостаен апартамент, който се състои от: коридор, дневна с кухненски бокс, три спални, две бани с тоалетна и две тераси.
Жилището ще бъде издадено по БДС: включва шпакловка и замазка, ел. инсталация до ключ и контакт, ВиК до тапа, висококачествена ПВЦ дограма и външна блиндирана врата.
Възможност за закупуване на подземни гаражи!
Локация: Сградата се намира в непосредствена близост до хотел 'ИнтелКооп' , ресторант ' Рио' , парк 'Студенец' , както и до различни търговски обекти и само на 5 минути с кола от Младежки хълм.
Пусков срок - лятото на 2026г.
Предимства на сградата:
Висококачествено строителство, съобразено с всички стандарти на съвременната архитектура. Изпълнението на сградата ще бъде по традиционен монолитен начин - със стоманобетонови колони, плочи и греди.
Използваемите покривни тераси се покриват с леки слънцезащитни устройства перголи, изработени от метална конструкция.
Част от фасадните стени са трислойни-вътрешен слой от тухлена зидария, външен от видима тухлена зидария и среден от минерална вата. Фасадата е с характерен архитектурен образ, като съчетание на червена видима тухлена зидария и цветна мазилка, обработка на челата на плочите с Еталбонд .
Запитване и огледи
Полетата, отбелязани със * са задължителни.
Тази форма изпраща email до perspektivaimot@gmail.com с Вашите: IP адрес/анти спам защита/, име, телефон и имейл. Данните се използват, за да се свържем с Вас, относно Вашето запитване.
За повече информация и за начина на управление на Вашите данни посетете: Политика за поверителност и защита.
