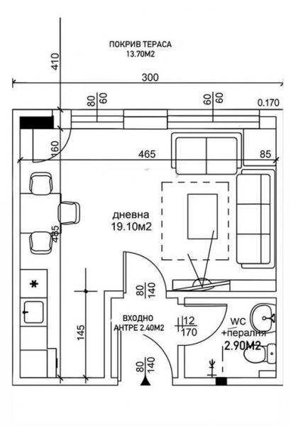
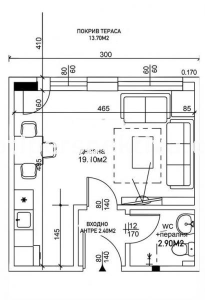
Продава: 1-стаен, Остромила, Кючук Париж, 49кв.м., 6/6ет., 63200€
Предлагаме Ви едностаен апартамент в сграда с АКТ 15! Състои се от СВЕТЛА и СЛЪНЧЕВА стая с кухненски бокс, спален кът, баня с тоалетна, входно антре и ПАНОРАМНА ТЕРАСА. Имотът които ви предлагаме да закупите е на шпакловка и замазка което дава страхотната възможност на новите собственици да го обзаведат по собствен вкус и стил. В близост са разположени детски градини, училища, хранителни магазини, удобен градски транспорт до всяка една точка на града и др.
Запитване и огледи
Полетата, отбелязани със * са задължителни.
Тази форма изпраща email до perspektivaimot@gmail.com с Вашите: IP адрес/анти спам защита/, име, телефон и имейл. Данните се използват, за да се свържем с Вас, относно Вашето запитване.
За повече информация и за начина на управление на Вашите данни посетете: Политика за поверителност и защита.
