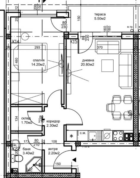
Продава: 2-стаен, Беломорски, Кючук Париж, 68кв.м., 3/6ет., 73100€
Предлагаме ви двустаен апартамент в новострояща се малка сграда на спокойно място в кв.Беломорски . Състои се от просторен хол с трапезария и кухненски бокс , отделна спалня , баня с тоалетна , тераса , входно антре . Сградата се строи от инвеститрор с построени над 40 сгради в град Пловдив . Чудесен имот както за живеене , така и за инвестиция .
Запитване и огледи
Полетата, отбелязани със * са задължителни.
Тази форма изпраща email до perspektivaimot@gmail.com с Вашите: IP адрес/анти спам защита/, име, телефон и имейл. Данните се използват, за да се свържем с Вас, относно Вашето запитване.
За повече информация и за начина на управление на Вашите данни посетете: Политика за поверителност и защита.
