Продава: 2-стаен, Белите брези, Кючук Париж, 50кв.м., 6/8ет., 79990€
ОТЛИЧНА ЛОКАЦИЯ!! ПАРК БЕЛИТЕ БРЕЗИ!! СРЕДЕН ЕТАЖ!!
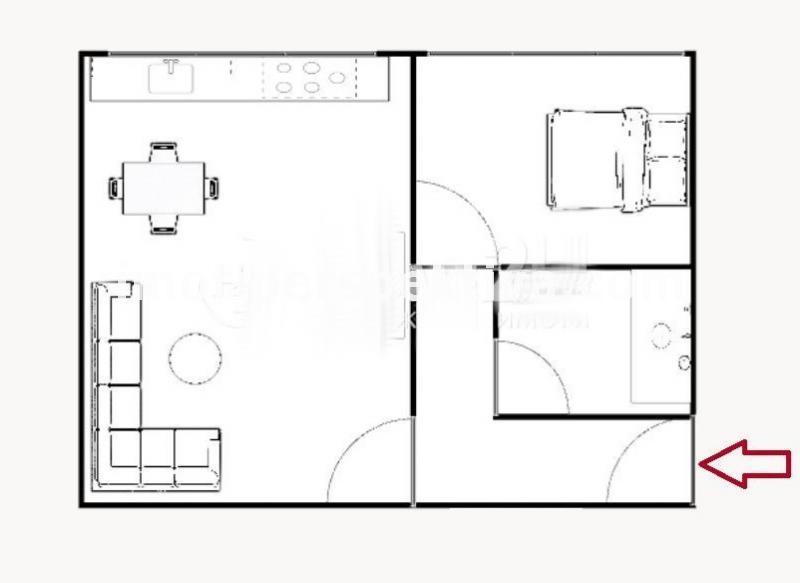
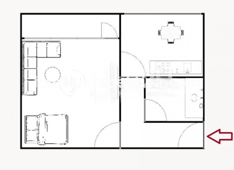
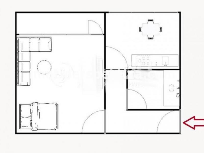
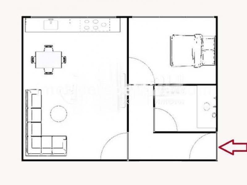
Представяме на Вашето внимание двустаен апартамент с реална площ, в района на кв. Кючук Париж - ул. Кичево. Жилището е на среден етаж, с източно изложение и е със следното разпределение : просторна дневна с излаз към тераса, широк коридор, баня с тоалетна, отделна кухня, която може да се преустрои в спалня. Сградата е с ремонтирани общи части, пред нея е обособен голям паркинг със свободно паркиране, а точно срещу входа на сградата се намират детска градина 'Албена' , както и ОУ 'Яне Сандански', а в непосредствена близост е парк 'Белите Брези'.
Запитване и огледи
Полетата, отбелязани със * са задължителни.
Тази форма изпраща email до perspektivaimot@gmail.com с Вашите: IP адрес/анти спам защита/, име, телефон и имейл. Данните се използват, за да се свържем с Вас, относно Вашето запитване.
За повече информация и за начина на управление на Вашите данни посетете: Политика за поверителност и защита.
